Профиль L-образный для напольной решетки в конвектор (пог.м.)
- Добавить в избранное
- Задать вопрос
Описание
Профиль L-образный для напольной решетки в конвектор (пог.м.)
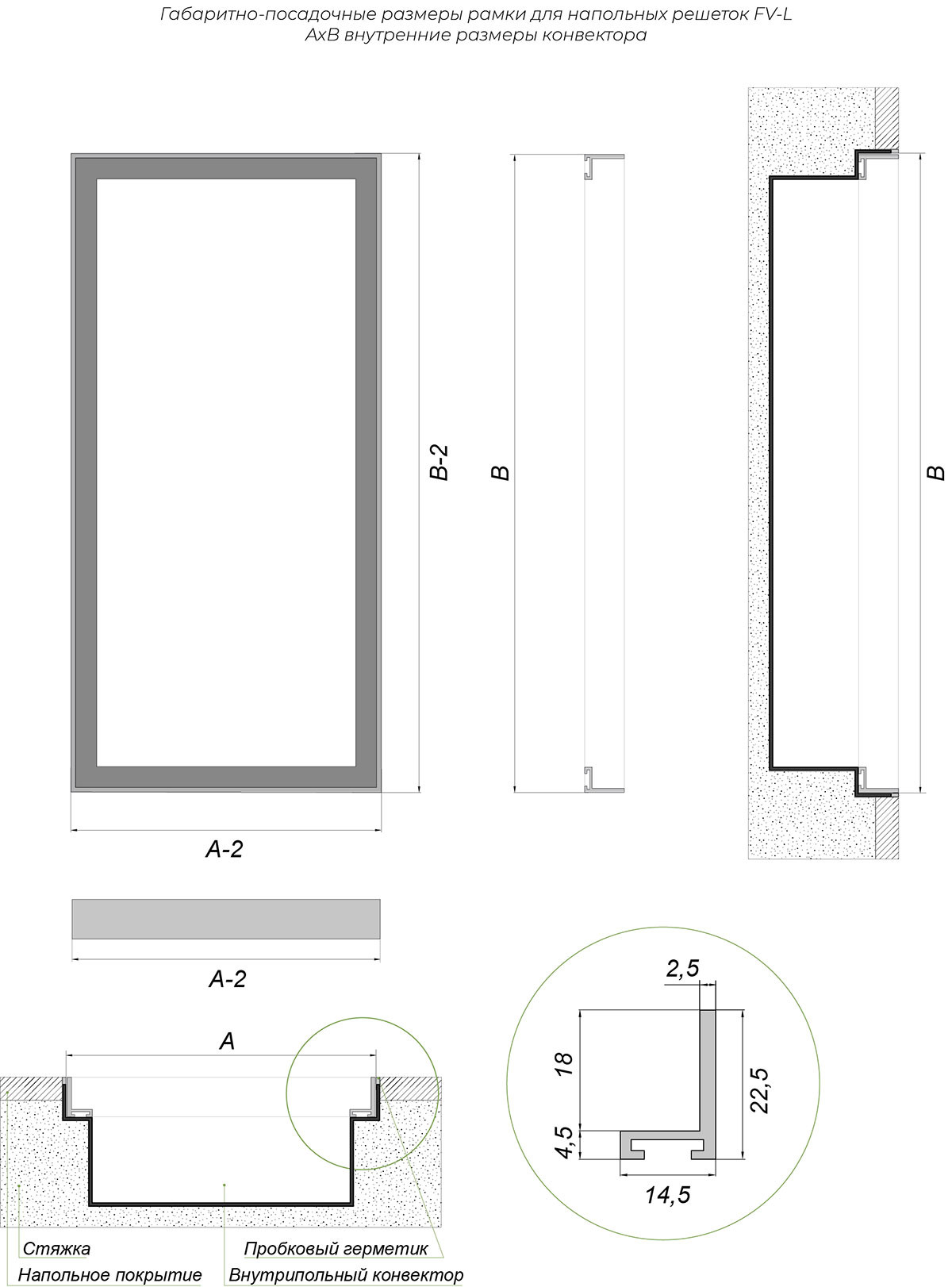
L-образный профиль монтируется встык с напольным покрытием. Зазор между рамкой и напольным покрытием заполняют пробковым герметиком. Обеспечивает высокую жесткость корпуса конвектора.
Профиль имеет жесткое основание для установки вовнутрь рулонной решетки. Поставляется погонными метрами кратно 3 метрам для последующего самостоятельного распила на месте установки согласно размерам конвектора.
При изготовлении решеток используется запатентованный алюминиевый профиль АДЗ1 (ГОСТ 22233-2018). По умолчанию решетки окрашены полиэфирной порошковой краской белого цвета RAL 9016. По запросу возможно покрытие в другие стандартные цвета по шкале RAL или анодирование.


Характеристики
-
Место примененияВ пол
-
ПроизводительООО "ЗАВОД ВРК"
-
Вид решеткиНапольные
-
РегулировкаНерегулируемая
-
БрендTHE GRILLES
-
МатериалАлюминий
-
Предоплата100%
Особенности
Чертеж
Отзывы
Отзывов нет. Станьте первым, кто оставит отзыв!
Пример заказа
- Похожие товары
- Смотрели ранее
- Хиты продаж
- Распродажа
- Популярное
Способы монтажа
Мы располагаем огромными возможностями и выбором
Монтаж наружных решеток встраиваемых
Способы установки ВРН, ВРН-А, ВРН-К, ВРН-С, РН-40 и др.
Монтаж наружных решеток накладного типа
Способы установки накладных решеток ВРН-Н, ВРН-НС, ВРН-МН, ИР-Н
Монтаж регулируемых решеток
Способы установки однорядных и двухрядных вентиляционных решеток РАГ, РАГ-М, РАД, РАГ-В
Монтаж щелевых решеток скрытого монтажа
Airslot / G-Line / Airline-L / Airline-LS / Airline-T / G-Look / PV
Монтаж переточных решеток
Технология установки переточных решеток
Монтаж встраиваемых щелевых решеток серии АДЛ
АДЛ, АДЛ-З, АДЛ-К, АДЛ-КЗ
Получите консультацию
Оставьте свои контактные данные и мы вам перезвоним!